• Home
  • Aktuelles
  • Die Baugenehmigung für unser Doppelhaus in Hamburg Nienstedten ist da!

Die Baugenehmigung für unser Doppelhaus in Hamburg Nienstedten ist da!

Ein großer Schritt Richtung Baubeginn für unser Doppelhaus in Hamburg Nienstedten ist geschafft – Die Baugenehmigung ist erteilt. Jetzt steht nur noch der Abbruch der Altimmobilie im Wege, der für kommende Woche geplant ist! Bauvorbereitungen gehen nun in die heiße Phase.

Hansa Hausbau Doppelhaus Hamburg Nienstedten 02
Hansa Hausbau Doppelhaus Hamburg Nienstedten 03
Hansa Hausbau Doppelhaus Hamburg Nienstedten 04
Hansa Hausbau Doppelhaus Hamburg Nienstedten 05
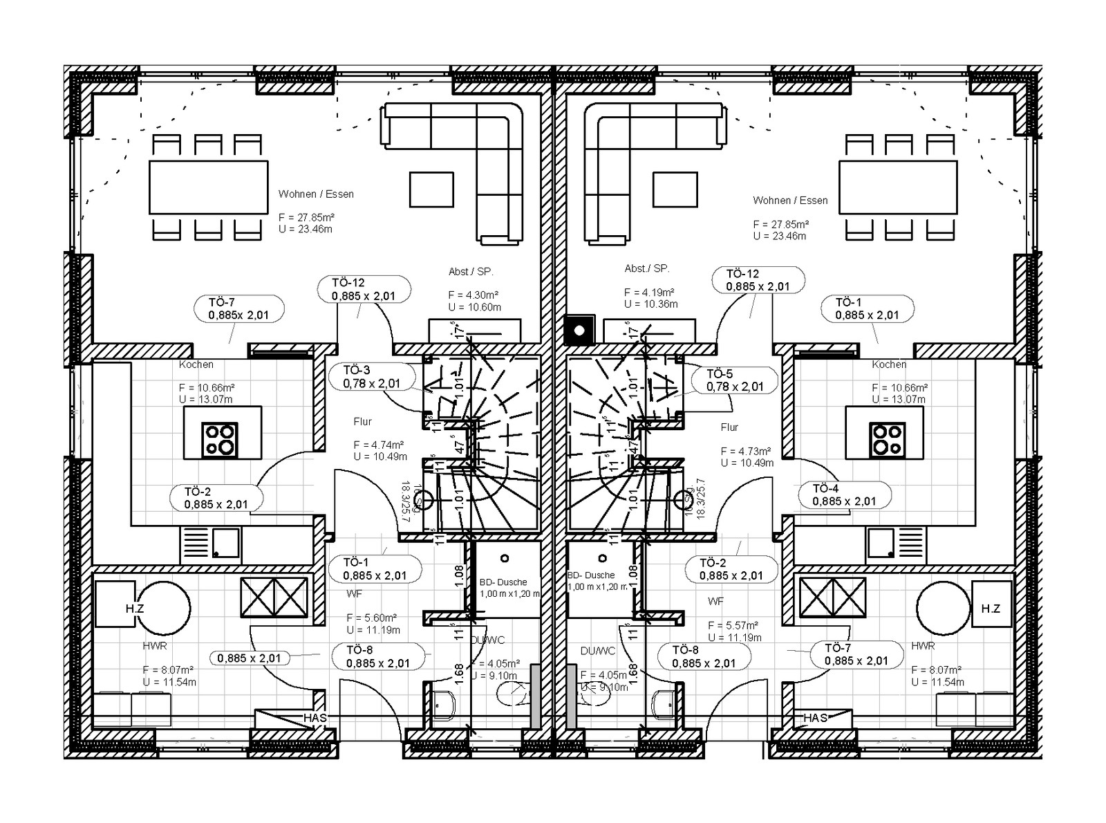
Hansa Hausbau Doppelhaus Hamburg Nienstedten 06 Erdgeschoss
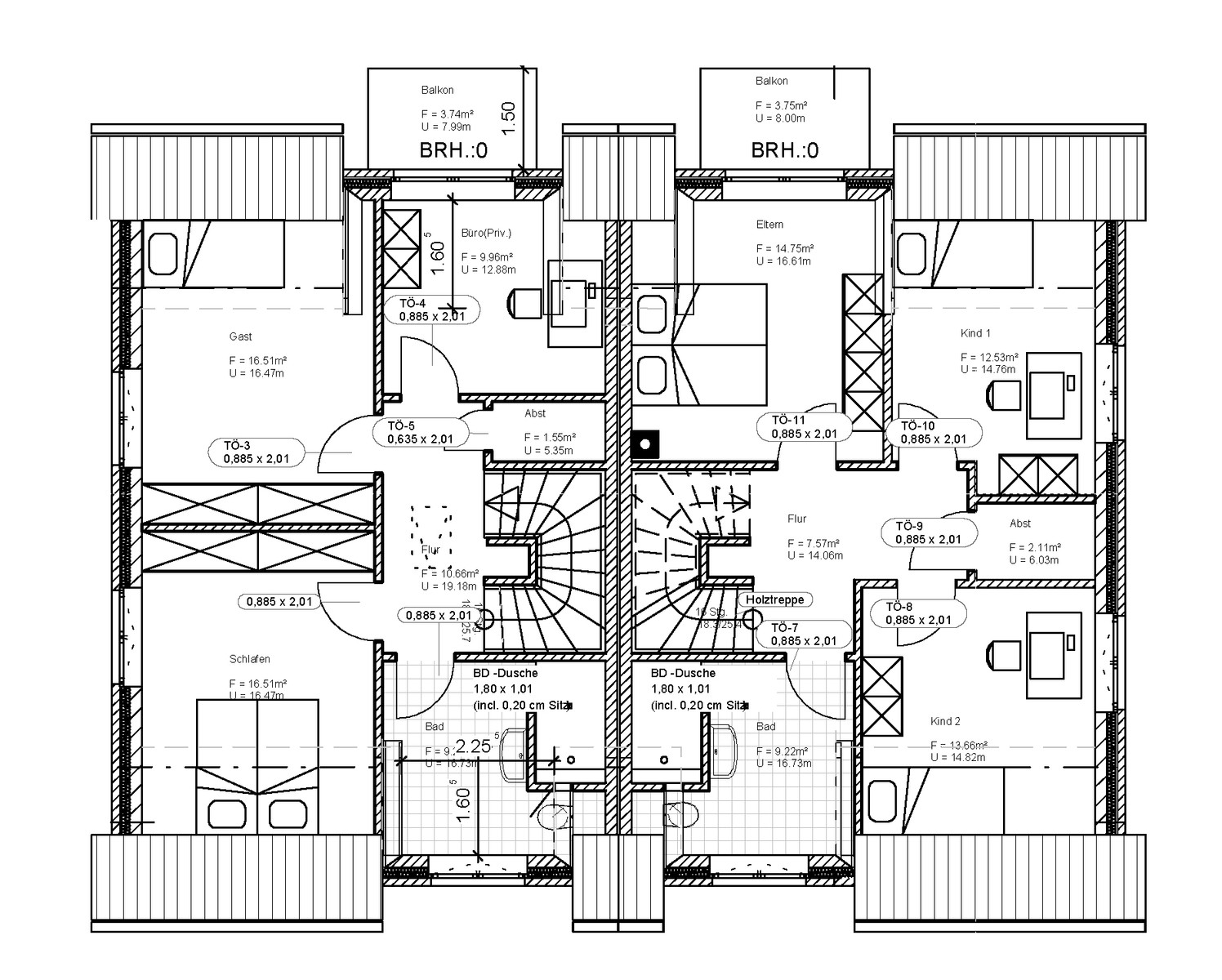
Hansa Hausbau Doppelhaus Hamburg Nienstedten 07 Dachgeschoss
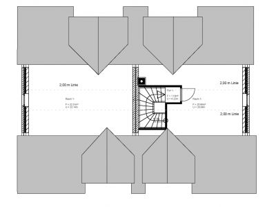
Hansa Hausbau Doppelhaus Hamburg Nienstedten 08 Spitzboden